Ciudad: Córdoba, Argentina
Programa: Residencial + Comercial
Tipo: Proyecto Universitario
Año: 2016
Superficie: 400m2
Co-architect: Lautaro Toranzo
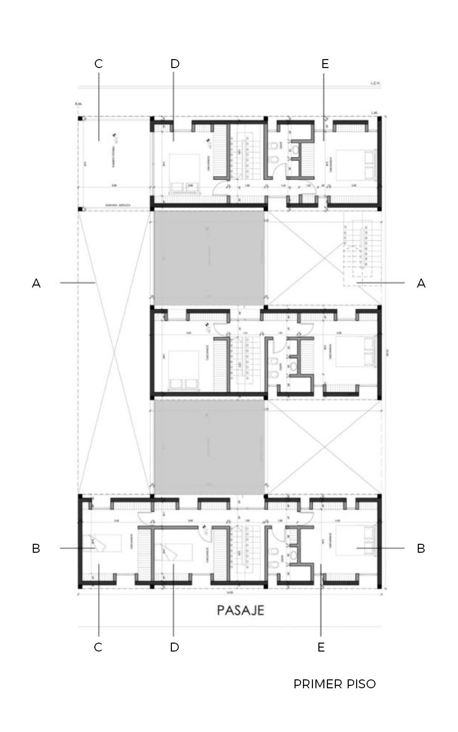
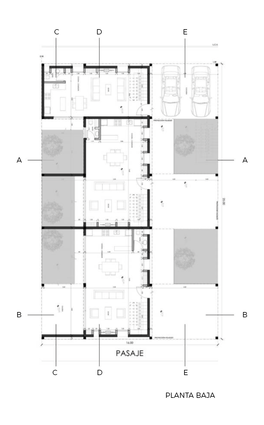
El proyecto se concibe como una pieza híbrida donde habitar y producir conviven en equilibrio, articulando tres viviendas con espacios comerciales bajo una misma lógica espacial.
Una trama modular ordena el conjunto y se materializa en una sucesión de prismas que alternan llenos y vacíos. Esta alternancia no responde únicamente a una decisión formal, sino que construye una espacialidad porosa, donde la luz, las visuales y las expansiones intermedias definen la experiencia del habitar. Los vacíos se vuelven lugares: extensiones de la vida doméstica que median entre lo privado y lo colectivo.
_ autocad
_ autocad
_ autocad
_ sketchup + adobe firefly
_ sketchup + adobe firefly
_ sketchup + adobe firefly
El proyecto encuentra su identidad en el “muro útil”, concebido como un espesor habitable que se pliega y se adapta a lo largo del conjunto. Este dispositivo integra funciones de guardado, apertura y soporte, asumiendo el rol de mobiliario, límite y articulador espacial. Así, los bordes dejan de ser planos neutros para adquirir espesor y responder, con precisión, a las necesidades del habitar contemporáneo. Más que separar, el muro organiza y cualifica el espacio.
_ autocad
_ autocad
La arquitectura se construye desde lo esencial. No se impone: acompaña.
En la materia, la luz y el vacío encuentra su expresión, definiendo una atmósfera serena, silenciosa y atemporal.
En la materia, la luz y el vacío encuentra su expresión, definiendo una atmósfera serena, silenciosa y atemporal.
_ RESPONSABILIDADES
1_ Mediciones del sitio
2_ Diseño conceptual
3_ Diseño estructural4_ Selección de materiales
5_Representación gráfica y técnica 2D
6_ Modelado 3D
OBJETIVOS _
Regenerar el tejido urbano a través de la densificación consciente _1
Incorporar vivienda en un área consolidada para reactivar el sector, aumentando la densidad sin perder la escala barrial ni la calidad espacial.
Incorporar vivienda en un área consolidada para reactivar el sector, aumentando la densidad sin perder la escala barrial ni la calidad espacial.
Crear un espacio público articulador e identitario _2
Diseñar una plaza y pasajes peatonales que funcionen como núcleo de encuentro social y cultural, fortaleciendo el sentido de pertenencia de los vecinos.
Diseñar una plaza y pasajes peatonales que funcionen como núcleo de encuentro social y cultural, fortaleciendo el sentido de pertenencia de los vecinos.
Integrar lo público y lo privado mediante transiciones espaciales _3
Generar gradientes entre calle, plaza y vivienda (encastres, galerías, vacíos) que favorezcan la apropiación progresiva del espacio.
Generar gradientes entre calle, plaza y vivienda (encastres, galerías, vacíos) que favorezcan la apropiación progresiva del espacio.
Promover la flexibilidad y diversidad de usos _4
Plantear una estructura independiente y modular que permita adaptaciones en el tiempo, combinando vivienda, usos culturales y actividades comunitarias.
Plantear una estructura independiente y modular que permita adaptaciones en el tiempo, combinando vivienda, usos culturales y actividades comunitarias.
Potenciar la materialidad y la experiencia sensorial _5
Utilizar materiales en estado natural y estrategias de luz y sombra para construir una atmósfera cálida, coherente con el entorno y con una fuerte carga perceptiva.
Utilizar materiales en estado natural y estrategias de luz y sombra para construir una atmósfera cálida, coherente con el entorno y con una fuerte carga perceptiva.